Unfurnished University Dist. 2 bedroom, 1 bath
Description
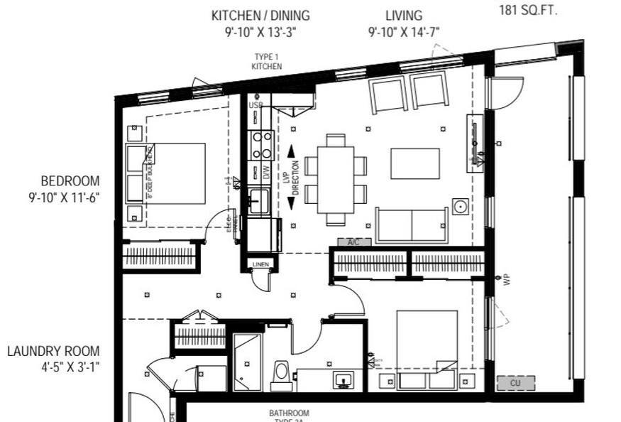
This 2-bedroom corner unit in The Argyle is located in the vibrant new University District. With 833 sq. feet and a large, covered balcony adding another 181 sq. feet, this is one of best floorplans in the building with living space positioned privately away from the hallway entrance, creating a quiet, private retreat. The University District is pedestrian friendly and close to the Children's Hospital and The University of Calgary. Grocery stores, shopping and public transport are located nearby at street level. The building has a gym, a common hosting area and an outdoor barbecue area that can be reserved through the property manager.
Seeking responsible professionals or students. Rent includes heat, water, electricity, Wi-Fi, and air conditioning. Summer-semester lease (May 1 to August 31) or long-term, 1-year lease (available April 15) available. Parking and pets are negotiable, with an option for renting two underground parking stalls ($150/month per stall). Tenants must become familiar with and observe strata bylaws in the building. References and income verification required. No smoking.
Interested? Contact me through email and tell me a bit about yourself. We can go over a lease and start the rental process. Thank you!
Included: · heat · water · internet · air conditioning · dishwasher · in suite washer & dryer · storage locker · bicycle room · fridge · stove · microwave · large, covered, private balcony · window coverings · vinyl plank floors
Commons area: · lobby · gym · barbecue area (reservable) · hosting area (reservable) · concierge · underground garage with bike rack
Nearby: · new University District · University of Calgary · Children's Hospital · Foothills Hospital · public transit · shopping · parks · dining · entertainment
Features
- Bedrooms: 2
- Bathrooms: 1
- Unfurnished
- Short term
- Long term
- $2,200.00 CAD / Month
- Alberta Children's Hospital
- Arthur J.E. Child Comprehensive Cancer Centre
- Foothills Medical Centre
- Peter Lougheed Centre
- Richmond Road Diagnostic & Treatment Centre
- Rockyview General Hospital
- Sheldon m. Chumir Health Centre
- South Calgary Health Centre
- South Health Campus
- Southern Alberta Forensic Psychiatric Centre
- Sunridge Medical Gallery General Ambulatory
Amenities
- All Utilities included
- Available Parking (may or may not be included in rent)
- Child friendly
- Dishwasher
- Gym/Fitness room
- In-unit Laundry
- Indoor Parking (may or may not be included in rent)
- Near Med School/Hospital (within 20 minutes by car)
- No pets allowed
- No smoking/vaping/cannabis
- Outdoor space/Balcony/Backyard
- Private Bath
- Walkable to Public Transit/Shopping/Amenities
Property location
3932 University Avenue Northwest, Calgary, Alberta, Canada
Housing
School
Hospital
Availability (Last updated on March 31, 2026)
Welcome to the MedsHousing AI Assistant
I'm here to help you search listings by hospital, school, location, or features. I am still in training, so I may occasionally provide incomplete or outdated information.
Please always review the listing and confirm details directly with the landlord.
Listings on MedsHousing.com are the source of truth.
For help, contact info@MedsHousing.com



















